Od elektrických projektov k realizácii...
+421 0908 108 767

Projekty pre domy

Naša spoločnosť zrealizovala viac ako 1900 projektov rodinných domov podľa rôznych požiadaviek investorov ako sú:
  • konzultačná činnosť s investormi ešte pred samotnou realizáciou projektovej dokumentácie elektroinštalácie nízkeho napätia (NN)
  • projekty na stavebné povolenie
  • realizačné projekty rodinných domov podľa požiadaviek investora
  • skutkové stavy rodinných domov
  • možnosť realizácie elektroinštalácie na mieru zákazníka
  • revízne správy

fotogaléria niekoľkých realizácií projektov

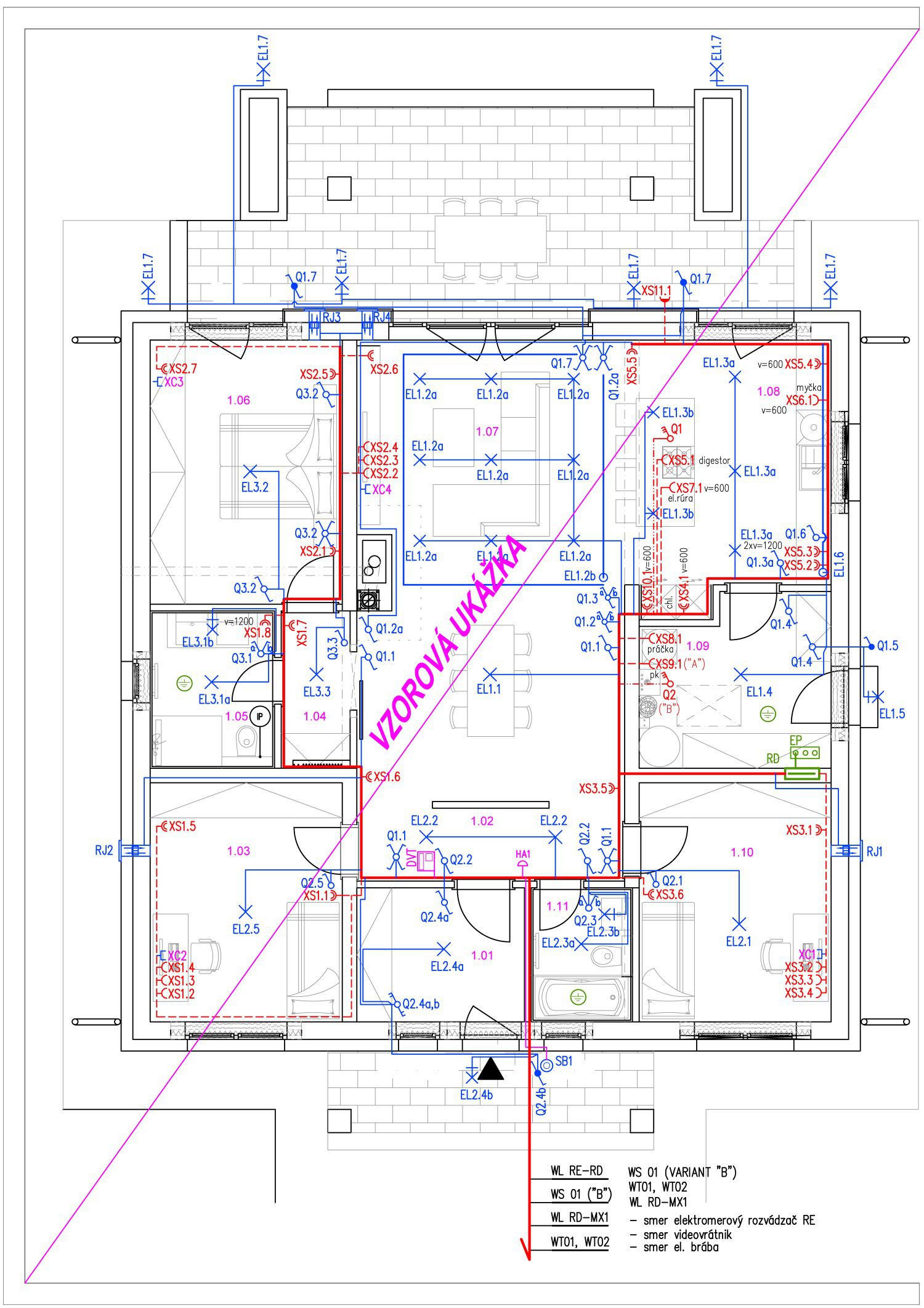
ukážka projektov elektrických inštalácií NN u rodiných domov

ukážka niekoľkých realizácií elektro projektov pre domy

realizácia elektrického podlahového kúrenia v rodinnom dome
inštalácia silnoprúdových rozvodov v drevodome
ukážka realizácie elektrických rozvodov

Základné kontakty

PRELIN s.r.o.
Tribečská 2974/27
953 01 Zlaté Moravce
Táto e-mailová adresa je chránená pred spamovacími robotmi. Na jej zobrazenie potrebujete mať nainštalovaný JavaScript.
mobil: 0908 108 767

® 2009-2019 PRELIN s.r.o.