Od elektrických projektov k realizácii...
+421 0908 108 767

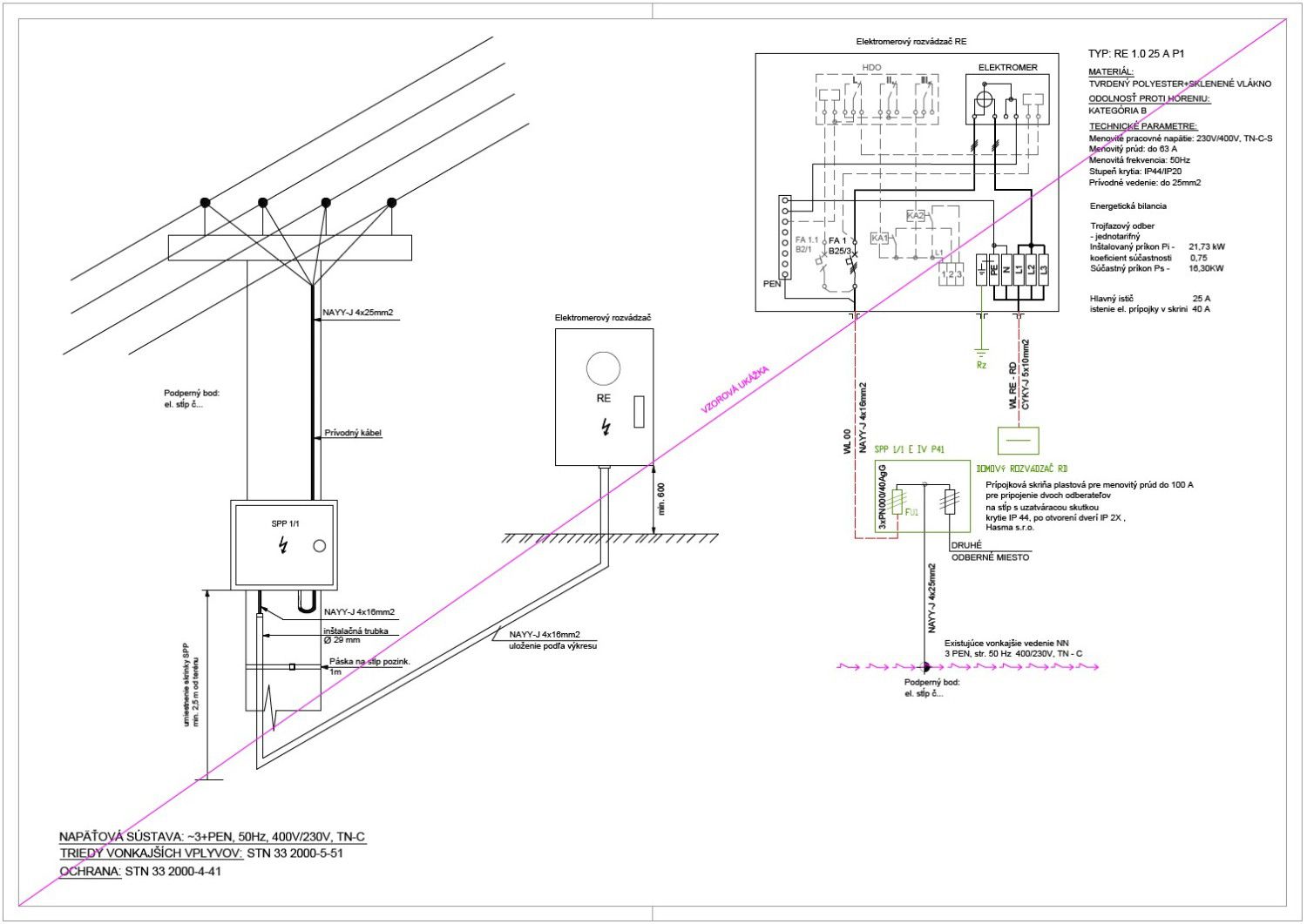
Elektrické prípojky

Norma STN 33 3320:2002 zaväzuje majiteľa nehnuteľnosti pri prerábke alebo rekonštrukcii domu umiestniť elektrickú prípojku, rozvádzač alebo elektromer na verejne prístupnom mieste, spravidla v priestore oplotenia pozemku.
Ak prerábate rodinný dom, podkrovie alebo inú časť nehnuteľnosti, zasahujete pritom do elektroinštalácií a váš starý elektromer je napríklad v zádverí, môžeme vám pomôcť novú elektroinštaláciu naprojektovať, zrealizovať a nakoniec vypracovať aj revíznu správu, ktorá je povinná pre opätovné napojenie nehnuteľnosti na elektrinu.

A to všetko v jednom balíku, bez nutnosti hľadať ďalších dodávateľov tejto služby.


O nás

Elektroinštaláciám a revíziám sa venujeme od roku 2013. Máme za sebou už viac ako...

Čítať viac

Ukážky našich realizácií

fotogaléria niekoľkých realizácií projektov elektrických prípojok

ukážka projektov elektrických prípojok

ukážka niekoľkých realizácií

realizácia elektrickej káblovej prípojky

Tradícia a kvalita

Za obdobie existencie naša spoločnosť zrealizovala vyše 2500 projektov.

od roku 2009

Základné kontakty

PRELIN s.r.o.
Tribečská 2974/27
953 01 Zlaté Moravce
Táto e-mailová adresa je chránená pred spamovacími robotmi. Na jej zobrazenie potrebujete mať nainštalovaný JavaScript.
mobil: 0908 108 767

® 2009-2019 PRELIN s.r.o.